Водонагреватель THERMEX ETERNA 50V
Электрический водонагреватель накопительного типа с узким корпусом THERMEX ETERNA 50V разработан для нагрева чистой холодной воды и поддержания температуры в баке от +18 C до +74±5 С для последующего использования ее для нужд бытового и промышленного горячего водопотребления. Работает от бытовой однофазной сети 230 В/50 Гц.

Преимущества THERMEX ETERNA 50V
-
Внешний узкий удлиненный корпус выполнен из сварного стального кожуха, покрытого антикоррозийной эмалью, внутренний бак – из нержавеющей стали, теплоизолирующий слой – из плотного пенополиуретана, трубчатый ТЭН – из меди, патрубки подвода и отвода воды – из металла;
-
Все элементы конструкции выполнены из экологически чистых материалов;
-
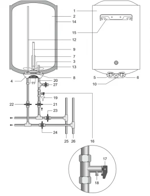
на фасадной части корпуса расположены: механический датчик температуры нагрева воды со светодиодом сигнализации включения ТЭНа в работу, стрелочный указатель температуры воды в режиме online;
-
водонагреватель может одновременно обеспечить несколько рядом находящихся точек забора воды;
-
воду в установку можно подавать из отдельного резервуара, установленного выше нагревателя минимум на 5 метров;
-
устройство нельзя хранить и эксплуатировать на открытом воздухе;
-
электрозащита водонагревателя IPX4;
-
оснащение нагревательного устройства магниевым анодом для защиты от электрокоррозии внутренних стенок бака;
-
наличие термостата с дублирующим выключателем электросети (срабатывает при превышении температуры воды более +93±5 С) дает возможность самостоятельно плавно регулировать степень нагрева воды в баке;
-
наличие предохранительного клапана (обратный клапан), который препятствует попаданию горячей воды в систему подачи при уменьшении в ней давления. Он же сбрасывает лишний объем нагретой воды при превышении давления в баке; водонагреватель монтируется на ровной вертикальной поверхности при помощи специальных анкеров, входящих в комплект поставки:
-
холодную воду, поступающую в бак из системы холодного водоснабжения, необходимо пропускать через фильтр грубой очистки с пропускной способностью не менее 200 мкм;
-
прекрасные технические возможности нагревателя:
-
Модельный ряд водонагревателей THERMEX ETERNA оснащен классическим диаметром корпуса, благодаря чему позволяет разместить устройства в любых помещениях:
Комплектация THERMEX ETERNA 50V
В комплект поставки входит:
-
Электрический водонагреватель в сборе (возможно отдельно приобрести систему УЗО) – 1 шт.;
-
Латунный предохранительный клапан – 1 шт.;
-
Анкера для монтажа установки на стене – 2 шт.;
-
Руководство по эксплуатации и мерам безопасности – 1 шт.;
-
Картонная тара для транспортировки – 1 шт.
Купить THERMEX ETERNA 50V в интернет-магазине
Вы можете купить водонагреватель THERMEX ETERNA 50V на нашем складе, предварительно уточнив наличие и время вашего приезда с нашими менеджерами по телефону. Если нет возможности забрать товар самостоятельно, мы доставим вам водонагреватель THERMEX ETERNA 50V в любую точку Беларуси по тарифам, которые вы можете посмотреть на странице «Доставка».
|
Модель
|
ETERNA 50V |
|
Способ нагрева
|
электрический |
|
Объем бака, л
|
50 |
|
Потребляемая мощность, Вт
|
1500 |
|
Напряжение в сети, В
|
220 |
|
Тип водонагревателя
|
накопительный |
|
Тип установки
|
Вертикальный |
|
Управление
|
механическое |
|
Максимальная температура нагрева воды, °C
|
75 |
|
Индикация включения
|
да |
|
Способ подачи воды
|
напорный |
|
Класс защиты
|
IPX4 |
|
Способ монтажа
|
настенный |
|
Высота, мм
|
527 |
|
Ширина, мм
|
365 |
|
Вес, кг
|
14 |
|
? Время, необходимое для нагрева полностью заполненного бака до максимальной температуры.
Время нагрева воды, мин
|
105 |
|
Подводка
|
нижняя |
|
Внутреннее покрытие бака
|
Нержавеющая сталь |
|
Срок гарантии на внутренний бак (мес)
|
36 |
|
Максимальное рабочее давление, бар
|
6 |
|
Страна производства
|
Россия |
|
Производитель
|
ООО "Тепловое оборудование". Россия, 187000. Ленинградская обл. г.Тосно, Московское шоссе, 44. РФ. |
|
Срок гарантии (мес)
|
12 |
Подробнее о способах оплаты в нашем интернет-магазине в разделе "Способы оплаты"
Мы находимся в центре Минска, и будем рады Вас видеть!
Подробнее читайте в разделе "Склад насосов в Минске".
Доставка в любой из городов осуществляется в течение 1-3 дней, в зависимости от загруженности машин и Ваших предпочтений.
Подробнее со списком городов и о доставке по Беларуси Вы можете ознакомиться в специальном разделе сайта "Доставка по Беларуси"
А также, круглосуточно, Вы можете задавать свои вопросы в форме ниже, либо в разделе "Контакты".
|
Наши специалисты ответят на любой интересующий вопрос по товару или работе магазина
|
Задать вопрос
|


